Seminarräume mit Seele in der
Lutherstadt Wittenberg für
Tagungen,
Off-sites, Workshops, Seminare, Gespräche und
Beratungen
VILLA SOPHIA
Die Villa Sophia in der Lutherstadt Wittenberg bietet Veranstaltungs- und Seminarräume mit besonderer Atmosphäre. Hier kann man intensiv arbeiten oder die Gedanken schweifen lassen, zur Ruhe kommen oder gemeinsam kreativ werden, sich finden oder sich verlieren, sich zurückziehen oder auf Entdeckungstour gehen.
Die Villa Sophia liegt ideal in der Wittenberger Schlossvorstadt am Rande der historischen Altstadt. So ist alles Wichtige in der Nähe und zugleich alles Stressige fern. Umrandet von einem Miniatur-Park mit großen alten Bäumen und gemütlichen Sitznischen eignen sich Räume und Park zum Arbeiten einzeln und in Gruppen genauso wie zum Entspannen abends an der Feuerschale.
Die Villa Sophia bietet alles, was man für gelungenes Arbeiten und Begegnen braucht. Praktisches wie viel Platz, gute Ausstattung, eine zentrale ruhige Lage und alle wichtigen Facilities (Küche, Sanitär, Shared Space und gutes Internet). Man spürt aber auch sofort, dass die Villa Sophia kein Funktionsbau ist, sondern Seele besitzt, eine besondere Kraft und Atmosphäre, eine gute Geschichte, eine angenehme Geborgenheit ohne Enge. Unsere Gäste erzählen begeistert, dass sie die Atmosphäre der Villa als große Unterstützung bei der Arbeit erfahren. Und dass sie die große Offenheit und Freiheit lieben, die die Villa ausstrahlt, ohne Sterilität und Beliebigkeit wie so oft in Hotels oder Begegnungsstätten.
SEMINARRÄUME
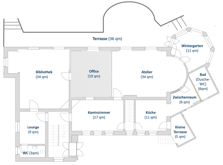
Die Seminarräume liegen im 150 qm großen Erdgeschoss, ausgestattet mit herrlicher alter Bibliothek, offenem Kamin, Flügel und Parkett, ebenso wie mit gutem W-LAN, Beamer, Flipcharts und weiterer Workshop-Ausstattung, außerdem mit Küche, Bad und Toiletten.
Zwei größere Räume mit je ca. 34 qm, zwei kleinere mit je ca. 18 qm, ein großer Wintergarten mit über 11 qm, eine kleine und eine große Terrasse (ca. 36 qm), ganz zu schweigen von rund 800 qm Park, bieten genügend Raum und flexible Möglichkeiten für viele Aktivitäten bei jedem Wetter. Alle Haupträume haben hohe Altbaudecken und Holzfußböden.
Die Villa Sophia ist aber auch auf dem neuesten Stand der Zeit. Klimabewusst mit großer Solaranlage, Wärmepumpe, Wallbox (in Kürze) und Trinkwasserfilteranlage verbindet sie den Charme der Vergangenheit mit den Notwendigkeiten der Gegenwart und dem Blick in die Zukunft.
Gartenräume
Die Gartenräume bestehen aus dem Atelier (ca. 34 qm), der mit dem Wintergarten (gut 11 qm) verbunden ist, von dem es auf die Terrasse (ca. 36 qm) und in den Garten (ca. 800 qm) geht. Kaminzimmer (gut 17 qm), Küche mit zweiter kleiner Terrasse und Bad schließen direkt an, die zweite Toilette und die Lounge befinden sich wenige Schritte über den Flur auf der anderen Seite des Hauses.
Das Atelier ist ausgestattet mit bequemen Freischwingerstühlen, Parkett, Flügel, WLAN, Beamer, Flipcharts und weiterer Workshop-Ausstattung. Es bietet Raum für bis zu 18 Plätze im Kreis. Der Wintergarten fasst bis zu 8 Plätze im Kreis oder rund um den ausziehbaren Konferenztisch. Weiteren Platz bietet die Terrasse, ganz zu schweigen vom Garten, der für viele Sitznischen ebenso Raum gibt wie für jede Menge Bänke oder Sitzgarnituren. Oder für Bewegung und Durchatmen, ganz nach Wunsch.
Bibliothek
Die Bibliothek bietet ein ganz besonderes Flair. Meisterhaftes Handwerk, wie es man es heute nur noch in alten Kloster- oder Schlossbibliotheken vorfindet, lässt eine einzigartige, ruhige Atmosphäre entstehen. Hier tut man sich leicht, fokussiert zu arbeiten, aufmerksam zuzuhören und konzentriert zu besprechen. Und - wenn Zeit bleibt - in den guten Büchern zu blättern, die einen interessanten Ausschnitt aus der Literatur zu Wirtschaft, Kultur, Führung, Organisation, Konflikt usw. bieten.
Der Raum bietet genügend Platz für eine Bestuhlung im Kreis für 12 Personen. Oft nutzen wir die Bibiliothek aber auch für intimere Zirkel, für Mediationen oder Board-Meetings. Sie ist bestens ausgestattet mit gutem WLAN, Beamer, Flipcharts und weiterer Workshop-Ausstattung und bietet Zugang zu Kaminzimmer, Lounge, Küche, Bad und Toiletten.
Shared Spaces
Die Shared Spaces umfassen die Lounge vor der Bibliothek, das zentrale Kaminzimmer, die Küche mit kleiner Terrasse, den Zwischenraum, das Bad und die zweite Toilette. Lounge und Kaminzimmer geben Zugang zu anderen Räumen und dienen oft als Nebenräume für Break-Out-Session. Gleichzeitig laden sie mit ihren gemütlichen Sofas und Sesseln zum Verweilen und Austausch ein und werden deshalb immer wieder gerne zum Rückzug alleine oder in kleinen Gruppen genutzt.
Das Kaminzimmer wird unversehens zentrale Drehscheibe, wenn die Erdgeschossfläche als Ganzes genutzt wird. Seinen ganzen Charme zeigt das Kaminzimmer aber erst, wenn man genüsslich vorm brennenden offenen Kamin sitzt. Zum guten Gespräch, mit einem guten Buch aus der Bibliothek, vielleicht mit einem guten Glas Wein oder einer Tasse Kaffee. Dann kann es bevorzugter Rückzugs- und Wohlfühlraum werden zum Entspannen, Nachdenken und Philosophieren.
Grundrisse, Preise und Konditionen
Anmerkungen:
Räume: Die
Gartenräume umfassen das Atelier, den
Wintergarten, die große Gartenterrasse und den gesamten Garten.
Shared Spaces umfassen das Kaminzimmer, die
Lounge, Küche, Zwischenraum, Bad und Toilette und die kleine
Terrasse an der Küche. Das Office kann auf
Anfrage zugebucht werden.
Preise:
Alle Preise zzgl. 19% USt, inklusive unbeschränkter
Versorgung mit Trinkwasser (aus der
Umkehr-Osmose-Filteranlage), Kaffee, Tee und Keksen.
Auch die Nutzung der Workshopausstattung
(Beamer, Flipcharts etc.) ist inklusive,
lediglich Verbrauchsmaterial ist mitzubringen oder zubuchbar.
Vorbereitung und Aufräumen sind innerhalb der
gebuchten Zeit zu erledigen. Rabatte für
mehrtägige Nutzung, Informationen zu Catering- und
Übernachtungsmöglichkeiten oder Sonderwünsche auf Anfrage. Zu
den Konditionen (Buchung, Stornierung etc.) im
Einzelnen hier.
MODERATION UND FACILITATION
Brauchen Sie jemanden, der Ihre Veranstaltung professionell
anleitet? Der den Ablauf in Absprache mit Ihnen strukturiert
und dann alle Teilnehmer sicher durch das Programm führt? Damit
Ihre Veranstaltungen effektiv, harmonisch und inhaltlich auf
den Punkt gelingen? Und Sie aus der schwierigen Doppelrolle von
Leitung und Teilnahme herauskommen?
Wir übernehmen auf Wunsch auch gerne die Moderation oder Facilitation, egal ob für kürzere Team- oder Gruppengespräche, mehrtägige Workshops oder eine Abendveranstaltung, ob in kleinerem oder größerem Kreis.
Wir haben eine langjährige und weitgefächerte Expertise in diesem Feld und können Sie sogar dann noch umfassend unterstützen, wenn möglicherweise Spannungen oder gar Konflikte zu erwarten sind.
Sprechen Sie uns an!
LUTHERSTADT WITTENBERG
Wittenberg ist ein reges Städtchen mit großer Geschichte und mehreren UNESCO-Welterbe-Stätten. Das kleine „Rom des Protestantismus“ mit weitgehend erhaltener Altstadt, vielen Sehenswürdigkeiten und Wider-sprüchen, mit Ruhe und Kraft, Geist und Kultur. Residenzstadt u.a. von Friedrich dem Weisen, bedeutende Universitätsstadt über Jahrhunderte, Wirkungsstätte u.a. von Martin Luther, Philipp Melanchton und der von Lucas Cranach begründeten Malerdynastie.
Wittenberg liegt wirklich zentral. Berlin und Leipzig erreicht
der ICE jeweils in 32 min, die A9 bringt einen rasch nach
Norden, Süden und Westen. Noch schöner ist es, in Wittenberg
und Umgebung zu bleiben. Und eine alte Kulturlandschaft zu
genießen, mit Ausflügen in stimmungsvolle alte Gärten,
Schlösser, Städtchen und Landschaften oder mit ausgedehnten
Radtouren entlang der Elbe. Wittenberg ist umgeben von mehreren
Naturparks, dem Biosphärenreservat Mittelelbe und weiteren
UNESCO-Welterbe-Stätten, u.a. dem Wörlitzer
Gartenreich.
Zahlreiche Hotels für jeden Geschmack bieten alle
Möglichkeiten.
LAGE UND ANFAHRT
Die Villa Sophia liegt nördlich knapp außerhalb der Altstadt, der zentrale Marktplatz ist fußläufig in 5 Minuten zu erreichen. In der Altstadt finden sich nicht nur viele der Sehenswürdigkeiten der Stadt, sondern auch ein großes Angebot von Hotels, Restaurants und Einkaufsmöglichkeiten.
Die Altstadt von Wittenberg ist umgeben von einem fast geschlossenen Grüngürtel. Weitere 5 Minuten zu Fuß quer durch die Altstadt nach Süden erreicht man den Elberadweg und die weitläufigen Elbwiesen.
Für Autofahrer liegt die Lutherstadt Wittenberg ca. 20 Minuten von der A 9 (Berlin - München) entfernt. Mit der Autobahnausfahrt (Klein Marzehns von Norden, Coswig von Süden kommend) beginnt eine wunderschöne Fahrt durch das Naturschutzgebiet Hoher Fläming oder entlang der Elbe.
Der Hauptbahnhof mit umfangreichen ICE, IC und Regional-Anbindungen ist in 5 Minuten mit dem Auto oder in 20 Minuten mit einem schönen Spaziergang durch die Stadt zu erreichen. Auch ein Bus fährt regelmäßig. Vom Bahnhof sind Berlin und Leipzig in 32 Minuten, Hamburg in 2,5 Stunden, ja sogar München oder der Frankfurter Flughafen in unter 4 Stunden erreichbar.
Die nächstgelegenen Flughäfen sind Leipzig/Halle und der Berliner BER, die jeweils in einer guten Stunde mit dem Auto oder der Bahn zu erreichen sind.
ÜBER UNS
Die Villa Sophia wird neben der Vermietung auch von der Harmonia Logic AG und deren Fortbildungseinrichtung, der Harmonia Academy, selbst genutzt. Hier finden Lehrgänge, Workshops, Off-sites, Vorträge, Treffen und andere Veranstaltungen statt, etwa die kleine Reihe der „Resonanzkonzerte“.
Harmonia Logic unterstützt Menschen und Organisationen, wann immer die Dinge nicht so harmonisch laufen wie erwünscht. Durch Coaching, Mediation oder Organisationsberatung bis hin zu Großgruppen-Events ebenso wie durch Fortbildungen. Zu Fragen von Führung, Kooperation, Konflikt, Strategie, Veränderungsprozessen, Nachhaltigkeit und vielem mehr. Mit einzigartiger Expertise hin zu zukunftsstarken Kunden - lebendigen, harmonisch adaptiven Organisationen, die die Herausforderungen einer zunehmend komplexen, unberechenbaren Welt souverän meistern und die Stakeholder begeistern.
Harmonia Logic arbeitet mit der genialen Wisdom Thinking®-Methode, die die Kraft und Orientierung eines starken Anliegens mit der Wahrnehmung und Berücksichtigung aller relevanten Kontexte verbindet. So können weisere Lösungen und Entscheidungen entstehen. Harmonia Logic bietet dazu auch Ausbildungen mit dieser Methode und besondere Werkzeuge an, offline die Harmonic Action Canvasses und online die Harmonic Guides.
Hinter Villa Sophia und Harmonia
Logic stehen mit all ihrem Engagement und Wissen die Gründer
und Eigentümer Dr. Martin Böckstiegel und Dr. Elke Böckstiegel.
Sie sind Pioniere für die Mindsets und Werkzeuge, die Menschen
und Organisationen fit machen für eine Welt, in der die
Menschheit sich wieder als Teil eines Ganzen wahrnimmt und
danach auch tatsächlich handelt.



















